
БАРН ХАУС — современный одноэтажный жилой дом с лаконичной архитектурой и продуманной планировкой, ориентированной на комфортное проживание семьи. Проект предусматривает рациональное зонирование помещений и удобен для постоянного проживания.
⸻
📐 Характеристики проекта
• Тип проекта: типовой
• Этажность: 1 этаж
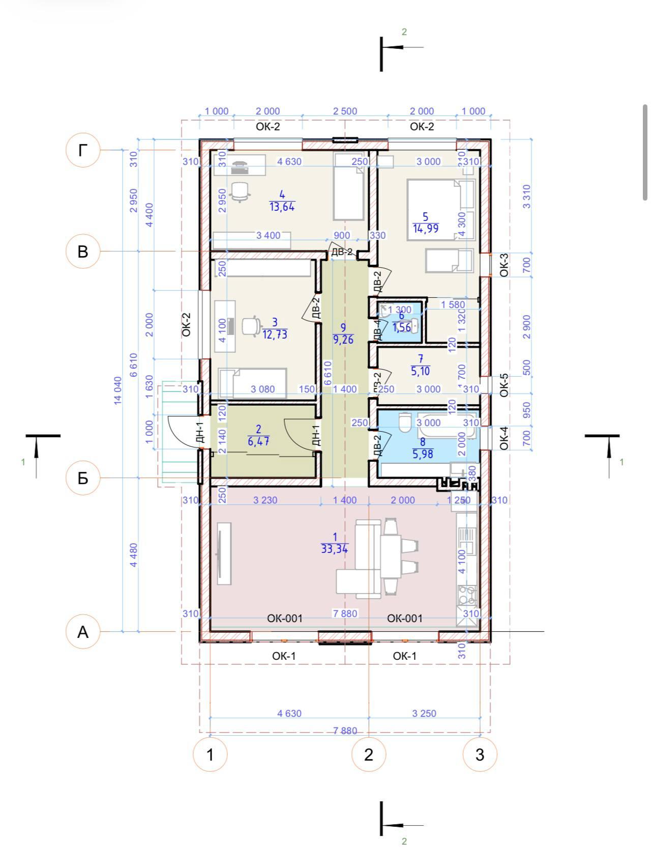
• Общая площадь: 109 м²
• Площадь застройки: 145 м²
• Количество комнат: 3
• Санузлы: 2
• Кладовая / котельная: предусмотрена
• Терраса: по желанию заказчика
• Срок строительства: 6 месяцев
• Формат строительства: под ключ
⸻
🧱 Планировочные решения
Проект включает кухню-гостиную, жилые комнаты, два санузла, и отдельное техническое помещение. При желании проект может быть дополнен террасой.
⸻
🔒 Примечание
Проект может быть адаптирован под индивидуальные требования заказчика: изменение планировки, площади, материалов и варианта исполнения.
ПЛАНИРОВКА

ФАСАДЫ / ВИД СВЕРХУ




ВНУТРЕННЕЕ ОФОРМЛЕНИЕ




По данному проекту разработана полная проектная документация, включающая архитектурные и конструктивные решения.
При заинтересованности вы можете запросить подробный проект у наших специалистов.