
Одноэтажный жилой дом с функциональной планировкой. Проект ориентирован на рациональное использование пространства и подойдёт для комфортного постоянного проживания.
🧱 Планировочные решения
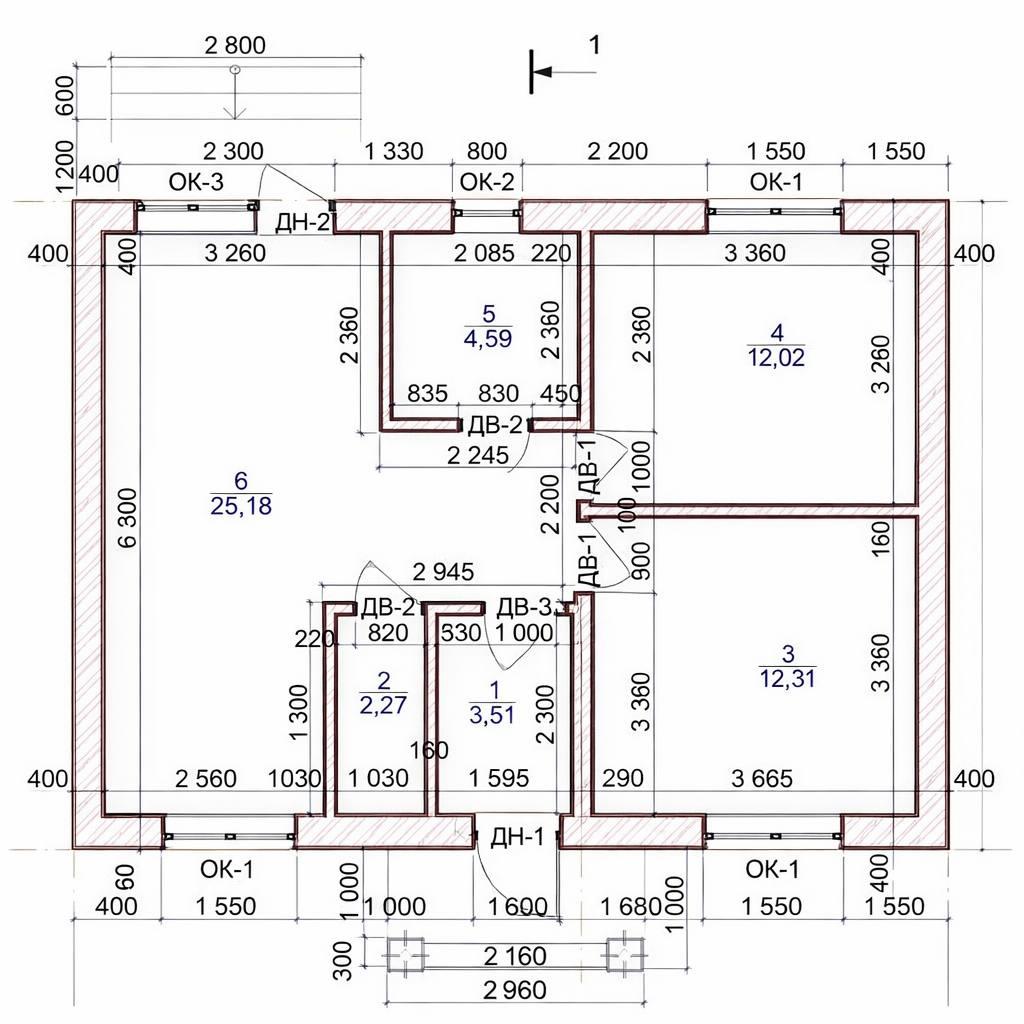
Планировка дома включает кухню-гостиную, две отдельные спальни, санузел, прихожую и техническое помещение. Такое решение обеспечивает удобную организацию пространства, функциональность и простоту эксплуатации дома.
🔒 Примечание
Проект может быть адаптирован под индивидуальные требования заказчика: корректировка планировочных решений, площадей помещений и вариантов отделки.
под ключ